マンション
賃料: 90,000円(税込)
物件No.M-3005
駅まで徒歩6分!設備充実のお部屋です。
交 通:JR中央線「西荻窪」駅
徒歩6分
所在地:杉並区西荻北2丁目27

他の物件も一括で資料請求される方は、「スタッフお勧め物件一覧ページ内」にてご希望の物件の「

資料請求」にチェックを入れ、
「スタッフお勧め物件一覧ページ」下の「チェックした物件を資料請求する」ボタンから送信ください。

全画像クリックで拡大表示します。

外観タイル張り、分譲タイプ
物件詳細情報
| 建物名称 |
フュージョナル西荻窪 501 |
建物構造 |
RC |
階建・階 |
7階/5階 |
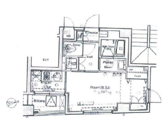
| 間取り |
1K |
専有面積 |
25.86m2 |
バルコニー面積 |
|
| 敷金 |
1ヶ月 |
礼金 |
1ヶ月 |
管理費等 |
10,000円 |
| 使用用途 |
居住用 |
築年月 |
2011年11月 |
現況 |
空家 |
| ペット |
|
契約期間 |
2年 |
保険加入 |
要加入 |
| 入居者数 |
1名 |
入居日 |
相談 |
取引形態 |
媒介 |
| 駐車場 |
なし |
更新日 |
2020/12/16 |
次回更新予定日 |
2020/12/23 |
| 設備 |
ガスコンロ付き、収納スペース、クローゼット、シューズボックス、室内洗濯機置き場、給湯、エアコン、モニタ付きインターホン、モニタ付きオートロック、バルコニー、エレベーター、宅配ボックス |
| 備考・条件 |
外観タイル張り、分譲タイプ |