アパート
賃料: 65,000円(税込)
物件No.A-1658
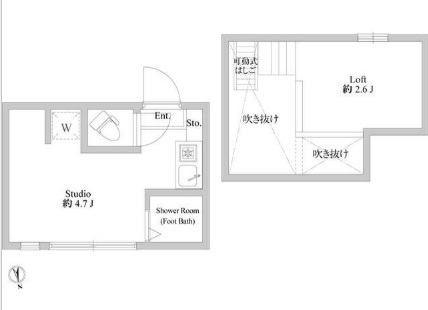
敷金礼金なし!ロフト付きのお得なお部屋です。
交 通:JR中央線「中野」駅
徒歩15分
/ 東京メトロ東西線 「落合」駅
徒歩13分
所在地:中野区上高田1丁目

他の物件も一括で資料請求される方は、「スタッフお勧め物件一覧ページ内」にてご希望の物件の「

資料請求」にチェックを入れ、
「スタッフお勧め物件一覧ページ」下の「チェックした物件を資料請求する」ボタンから送信ください。

全画像クリックで拡大表示します。
物件詳細情報
| 建物名称 |
アーバンプレイス中野EAST 206 |
建物構造 |
木造 |
階建・階 |
2階/2階 |
| 間取り |
1R |
専有面積 |
10.20m2 |
バルコニー面積 |
|
| 敷金 |
なし |
礼金 |
なし |
管理費等 |
3,000円 |
| 使用用途 |
居住用 |
築年月 |
2015年12月 |
現況 |
空家 |
| ペット |
|
契約期間 |
2年 |
保険加入 |
要加入 |
| 入居者数 |
1名 |
入居日 |
即入居可 |
取引形態 |
媒介 |
| 駐車場 |
なし |
更新日 |
2020/12/16 |
次回更新予定日 |
2020/12/23 |
| 設備 |
温水洗浄便座、収納スペース、室内洗濯機置き場、都市ガス、ロフト、フローリング、エアコン、CATV、光ファイバー、オートロック |
| 備考・条件 |
|